VÀlkommen till GEMA Shop - din expert pÄ vÀrme-, sol- och sanitetsteknik sedan 1991. Vi ger dig personlig rÄd och erbjuder tekniska lösningar som verkligen fungerar.
  • snabb leverans

  • Gratis hjĂ€lp och rĂ„d

  • Öppet 7 dagar i veckan

Anhaltinerring 17, 39439 GĂŒsten

A.B.S.  |  SKU: HP-FB18

Pelletssilo PLATTGOLV inkl. ram

Namn: A.B.S. Silo- und Förderanlagen GmbH

Adress: Industriepark 100, 74706 Osterburken

E-post: info@abs-silos.de

Webbplats: https://abs-silos.de/

Europeisk tillverkare: Ja

Normalpris 3.035,91 €
inkl. MwSt. Kostenloser Versand innerhalb Deutschland

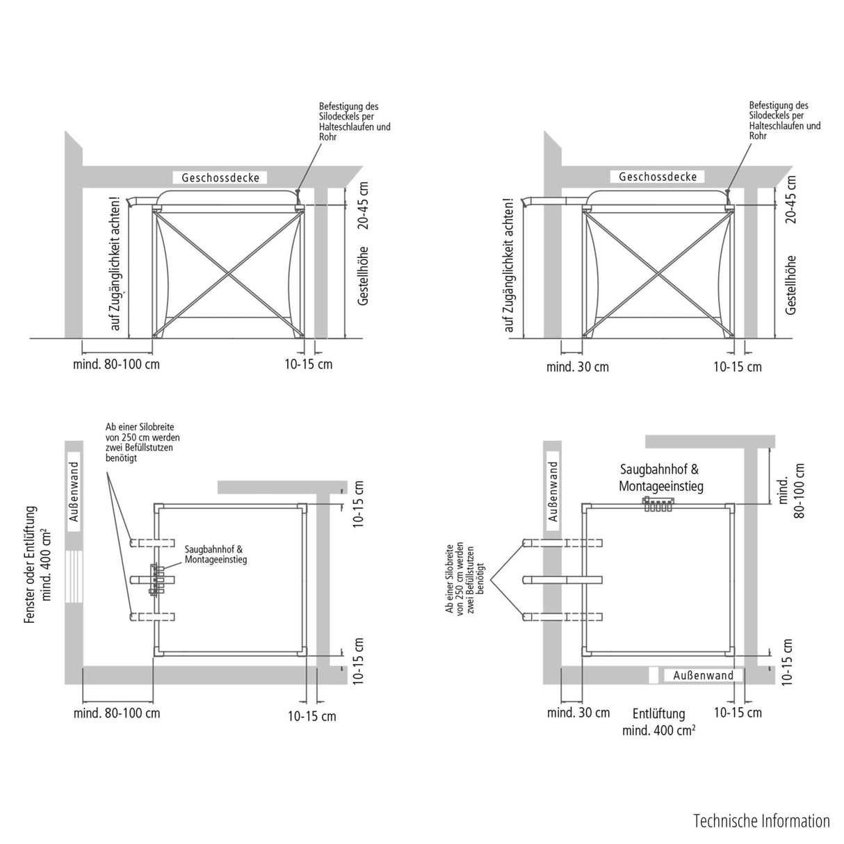
RammÄtt
Rumshöjd

Leverans och frakt

Bearbetningstiden Àr vanligtvis 1 arbetsdag. Leveranstiden för paketvaror Àr 1-3 arbetsdagar. För fraktsÀnda varor Àr leveranstiden 3-5 arbetsdagar. Leveranstiderna utanför Tyskland Àr olika.

Descrizione

Pelletssilo med plan botten, inklusive ram

A.B.S. Pelletssilo med platt botten – en attraktivt prissatt lösning för full kapacitet – det blir inte bĂ€ttre

frÄn A.B.S.

Med den kubformade FlexiloŸ FLAT FLOOR (patentnummer 10 2009 033 230) av A.B.S. Mellan 80 och 90 % av pelletsförvaringsutrymmet utnyttjas. Detta gör att trÀpellets kan förvaras optimalt och platsbesparande i nÀstan alla rum, Àven med lÄgt i tak.

Höjdpunkter frÄn Pelletssilo

  • Maximal pĂ„fyllningsvolym: Upp till 90 % av pelletsförvaringsutrymmet kan utnyttjas.
  • Enkel och snabb montering
  • Avloppsrör för manuell tömning som standard
  • Suganslutningar, installationsĂ„tkomst, manuellt utsug och pĂ„fyllningsledning kan installeras pĂ„ valfri sida enligt dina specifikationer.
  • Anpassade dimensioner för varje applikation

Leveransomfattning FlexiloÂź FLAT BAS HP 18 inkl. ram

  • SilopĂ„se med insydd stötdĂ€mpande vĂ€gg
  • Galvaniserad stĂ„lram som instickssystem inklusive monteringsmaterial.
  • LĂ€mpligt pĂ„fyllningssystem (standard sidofyllning)
  • InnehĂ„ller: 5 sugsonder, manuell omkopplingsenhet och sugslangar inuti.
  • Stödkonstruktion för silolock (rör mĂ„ste tillhandahĂ„llas av kunden)
  • Monteringsanvisningar

Betalning & SĂ€kerhet

Betalningsalternativ

  • American Express
  • Apple Pay
  • Bancontact
  • BLIK
  • EPS
  • Google Pay
  • iDEAL Wero
  • Klarna
  • Maestro
  • Mastercard
  • MobilePay
  • PayPal
  • Przelewy24
  • Shop Pay
  • Union Pay
  • Visa

Din betalningsinformation behandlas sÀkert. Vi lagrar ingen kreditkortsinformation och har inte tillgÄng till din kreditkortsinformation.

Kontakta oss